EN
EN
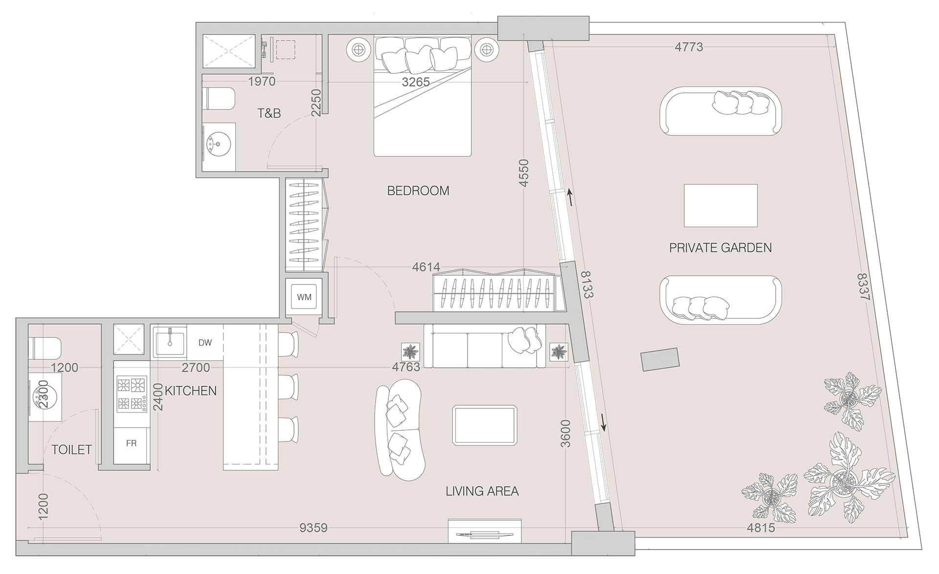
W1NNER Tower is a 26-story project where aesthetics and design meet an active and healthy lifestyle! Every inch of the house is thoughtfully crafted for sports and entertainment, offering everything from a traditional outdoor gym to sports simulators on gaming consoles. Whether you’re up for an exciting game or prefer a workout in the pool — it’s a win-win for you!
Please quote property reference
HOME SWEET HOME - ob-2
Compare listings
ComparePlease enter your username or email address. You will receive a link to create a new password via email.